Обяви За нас Контакти
Продава КЪЩА
област Пловдив, с. Бенковски
287 000 €
561 323.21 лв.

(1 400 €, 2 738.16 лв./m2)
Цената е с включено ДДС
Коригирана в 15:52 на 21 ноември, 2025 год.
Обявата е посетена 19 пъти.
Площ:
205 m2
Двор:
670 m2
Строителство:
Тухла, Ще бъде въведен в експлоатация 2025 г.

Описание на имота:


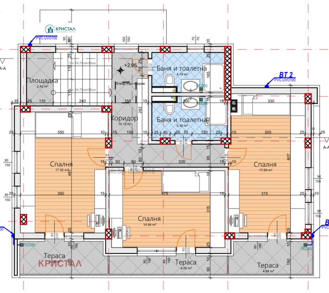
Оф.29978 Агенция 'Кристал' предлага на Вашето внимание масивна двуетажна къща с РЗП от 205м2 и двор от 670м2, ситуирана на асфалтов път в с. Бенковски с бърз достъп до главен път. Имотът има следното функционално разпределение: Първи етаж разполага с входно антре, просторен хол с трапезария и кухня с излаз на голяма веранда. На етажа има също спалня, баня с тоалетна и перално помещение. Втори етаж разполага с 3 спални, две бани с тоалетни, просторна тераса. Къщата е в строеж. За построяването й са използвани висококачествени материали. Очаква се акт 16 до края на годината и е предвидено да бъде включена към канализацията. Можете да прегледате всички наши обяви в сайта ни : https://www.crystalimoti.com Оказваме пълно съдействие за банково кредитиране, при най-добри условия и цялостна юридическа проверка на имотите, които предлагаме! Тел. за контакт 0882 261240
Особености
Тухла
За контакт:
0882261240
Агенция:
КРИСТАЛ
032 0888 21 32 95; 0888 912 771
КРИСТАЛ logo
Медал за прослужено време
В imot.bg от 2007 г.
crystal.imot.bg
Адрес:
област Пловдив, гр. Пловдив, ул.Братя Търневи 21
http://KRISTAL.imot.bg
ИЗПРАТИ ЗАПИТВАНЕ
ИЗПРАТИ ЗАПИТВАНЕТО

Продава КЪЩА
област Пловдив, с. Бенковски
Обява: 1j175070475607450

287 000 €
561 323.21 лв.
(1 400 €, 2 738.16 лв./m2)

Цената е с включено ДДС
ЗАПАЗИ ОБЯВАТА

Местоположение: област Пловдив, с. Бенковски